CLearwater hills, Paradise valley, Az.

Residential Design Project

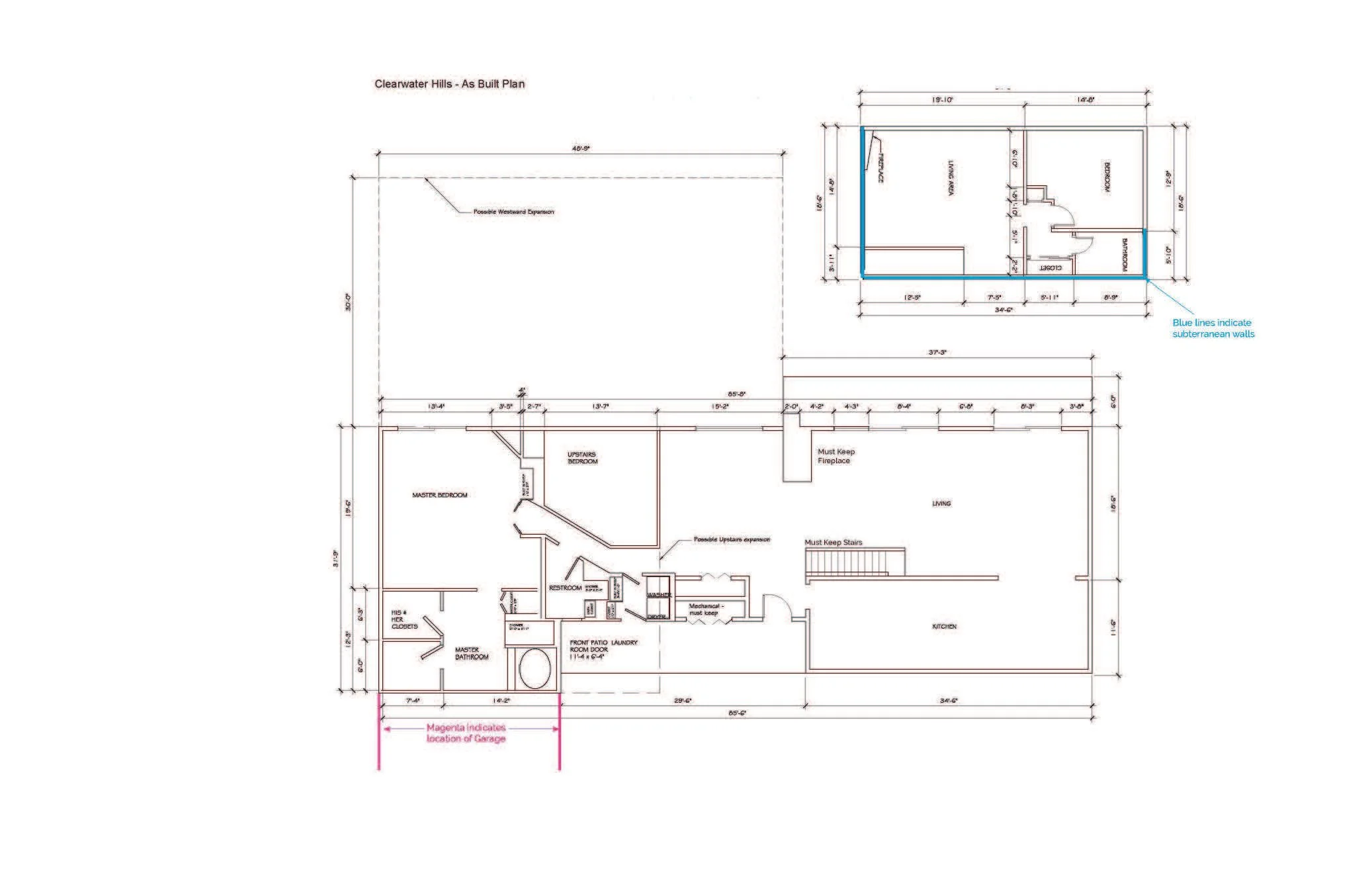
This project is a full remodel of residential property located on a hillside in Clearwater Hills neighborhood in town of Paradise Valley, AZ. Honors project assignment in addition to full remodel, was to plan outdoor spaces adjacent to the house. This goal was achieved by adding outdoor living on the first floor with descending window wall in the living room to connect the indoor and outdoor spaces and added waterfall and river feature that goes from the roof of the new addition through the patio to lower level of the back yard, creating a tranquil space for outdoor entertaining in the hot climate. Orientation of the backyard facing east and south was in favor to accomodating such a layout as it blocks the hot afternoon sun.

Next
Next

Shark House - Custom Design